Egress window in Ottawa, Drain and window well added - Image 1
Egress window in Ottawa, Drain and window well added - Image 2
Egress window in Ottawa, Drain and window well added - Image 3
Egress window in Ottawa, Drain and window well added - Image 4
Egress window in Ottawa, Drain and window well added - Image 5
Egress window in Ottawa, Drain and window well added - Image 6
Egress window in Ottawa, Drain and window well added - Image 7
Egress window in Ottawa, Drain and window well added - Image 8

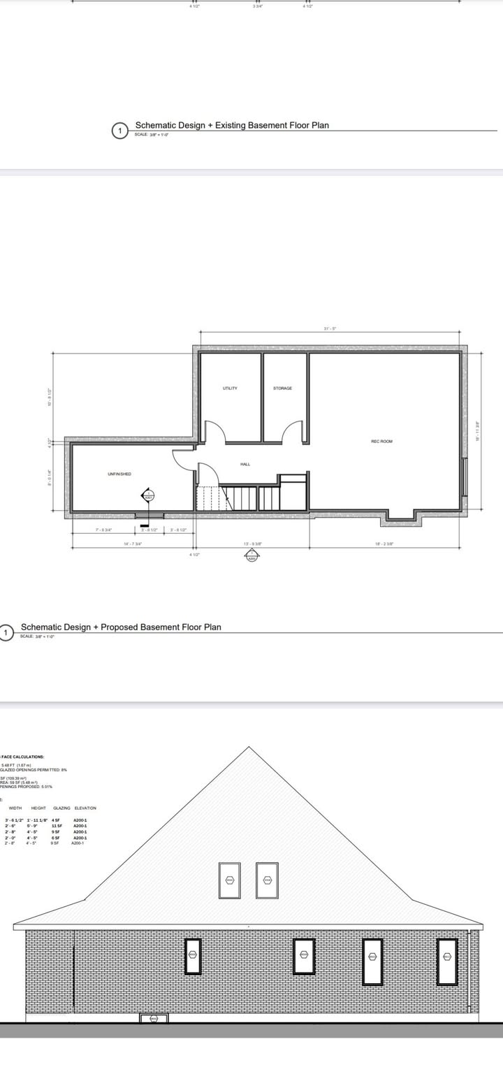
Egress window in Ottawa, Drain and window well added

Currently just waiting for the window installation.

Another permit soon to be closed.

#ottawa #ottawaconstruction #ottawaegress #ottawacontractors

The Bottom Line

View the original post on Facebook. Contact us to discuss your renovation project.

Ready to Start Your Basement Project?

Get a free, instant estimate for your Ottawa basement renovation. No obligation - just accurate pricing in 60 seconds.

Get Free Estimate